3階平面図を表示する
2階平面図を表示する
1階平面図を表示する
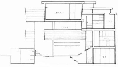
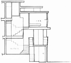
断面 へ
断面 9
断面 6 
断面 5
断面 6
断面 5
断面 9
断面 へ
3階平面図
2階平面図
1階平面図
unit 2

© 磯矢建築事務所 | 目次 |

 をクリックすると各断面図が表示されます。
1,2,3F をクリックすると各階平面図が表示されます。
概要のページへ

図面

写真を見る